Hace ya unos días que estamos trabajando en nuestro estudio con un ático situado en el barrio de Gracia de Barcelona. Un barrio donde muchos artesano y artistas tienen su espacio de trabajo.
Hace ya unos días que estamos trabajando en nuestro estudio con un ático situado en el barrio de Gracia de Barcelona. Un barrio donde muchos artesano y artistas tienen su espacio de trabajo.
Es un espacio que vamos a reformar de diseño para una artista de la ciudad que ha decidido vivir y trabajar en el mismo sitio.
Nuestra clienta prioriza el taller y quiere que sea más un taller-casa que una casa-taller.
Para afrontar el reto y puesto que el espacio no es muy grande estamos recurriendo a la polivalencia que nos dan los muebles con ruedas para acotar y modificar los espacios.
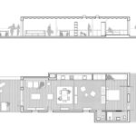
Como podréis ver en los esquemas el taller-casa puede dividirse gracias a dos armarios con ruedas, creando así el espacio de estar, el taller, y el dormitorio.
Al mover estos armarios el espacio se transforma totalmente y nos da múltiples posibilidades. Podemos realizar una exposición, podemos hacer una cena de Navidad con 50 personas o sencillamente podemos adaptarlo a una vivienda convencional. Aquí es cuando creemos que el reto se transforma en juego de diseño de interiores.
Este recurso es relativamente económico ya que podemos diseñar a medida los muebles, en este caso hechos en pino, ponerles ruedas y ya disponemos de un muro.
El diseño de la cocina de momento también la estamos pensando como módulos que se pueden mover de manera que la casa adquiere una polivalencia interesante a nuestro modo de ver.
La materialización se está pensando en hormigón en el suelo y los elementos móviles en pino. De esta manera enfatizamos el carácter unitario de la propuesta de proyecto para una reforma integral.
Además de usar estos muebles como configuradores del espacio también vamos a recurrir a las cortinas para separar y dar calidez a los distintos ambientes.







